KLEIN FEIN MEIN MiniHaus (PROJEKTIERT)
| Nutzungsart | Wohnen | Vermarktungsart | Kauf | 
| Objektart | Haus | Objekttyp | besondere Immobilie | 
| PLZ | 89520 | Ort | Heidenheim an der Brenz / Aufhausen | 
| Land | Deutschland | Baujahr | 2024 | 
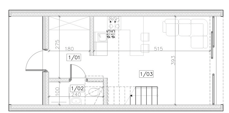
| Wohnfläche | 50 m² | Grundstücksgröße | 180 m² | 
| Anzahl Zimmer | 2 | Befeuerung | Pellet, Solar | 
| Stellplatzart | Carport | Etagenzahl | 1,5 | 
| Kaufpreis | 215.000 € | Währung | € | 
| Stellplatzanzahl | 2 | externe Objnr | HDHMH50 | 
| Status | Aktiv | Betreuer | 2 | 
			Objektbeschreibung: MINIMAISMUS verbunden mit DADAISMUS BAUKUNST PUR nahe der NATUR
Energetisches Bauen nach GEG Lage: Heidenheim an der Brenz liegt am nördöstlichen Ende der Schwäbischen Alb und lockt mit seinem Natur- Theater an.
Der Stadtteil Aufhausen befindet sich direkt an der Brenz mitten im Grünen, Umgeben von Hügeln und einer traumhaften Burg. Ausstattung: * Architekten MiniHäuser frei planbar
* Auf Bodenplatte
* mit Carport inkl WallBox E-Bike Elektro PKW Ladestation
* idylische Innenhöfe
* Top Lage
* wenige Gehminuten zur Brenz ins Grüne Sonstige Angaben: Heizungsart mit Pellet und Solar
Energieausweis in Bearbeitung
Energetischen Bauen nach GEG
Architekten MiniHäuser frei planbar
FRAGEN SIE UNS
WIR PLANEN UND BAUEN AUCH AUF IHREM GRUNDSTÜCK ---UND ODER BESCHAFFEN IHNEN EINEN GEIGNETEN BAUPLATZ UND KÜMMERN UND UM ALLES ---BAURECHTLICHE--PLANUNGSRECHTLICH
FRAGEN SIE EINFACH NACH .................
		
		
		Energetisches Bauen nach GEG Lage: Heidenheim an der Brenz liegt am nördöstlichen Ende der Schwäbischen Alb und lockt mit seinem Natur- Theater an.
Der Stadtteil Aufhausen befindet sich direkt an der Brenz mitten im Grünen, Umgeben von Hügeln und einer traumhaften Burg. Ausstattung: * Architekten MiniHäuser frei planbar
* Auf Bodenplatte
* mit Carport inkl WallBox E-Bike Elektro PKW Ladestation
* idylische Innenhöfe
* Top Lage
* wenige Gehminuten zur Brenz ins Grüne Sonstige Angaben: Heizungsart mit Pellet und Solar
Energieausweis in Bearbeitung
Energetischen Bauen nach GEG
Architekten MiniHäuser frei planbar
FRAGEN SIE UNS
WIR PLANEN UND BAUEN AUCH AUF IHREM GRUNDSTÜCK ---UND ODER BESCHAFFEN IHNEN EINEN GEIGNETEN BAUPLATZ UND KÜMMERN UND UM ALLES ---BAURECHTLICHE--PLANUNGSRECHTLICH
FRAGEN SIE EINFACH NACH .................
Ihr direkter Ansprechpartner
Name und Anschrift
Firma  IDEEN-FABRIK Architekten Dipl. Ing. Leistungen und Handwerkskunst 
				PB Ulm / Neu-Ulm UG (Haftungsbeschränkt) 
				89073 Ulm
Kontaktdaten
Tel.: 0731 / 60270200
				
				Fax: 0731 / 60270209
Email: info@pbulm.de
				Homepage: https://www.ideen-fabrik.eu/

 
                    
                












